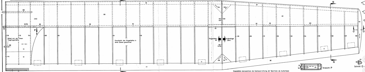
Køídlo 
Køídlo je u Amiga jednoduché.
Støed køídla je obdélníkový, uši se zužují, žebra jsou plná, není tøeba tahat køídlem žádné kablíky, není tøeba dìlat v žebrech otvory. Ve støedové èásti jsou všechna žebra stejná s výjimkou prvních tøí žeber ve støedu køídla, kde je balzový potah na horní i dolní stranì až k odtokovce, na uchu se žebra plynule zmenšují. Nosník tvoøí dvì obdélníkové smrkové lišty a balzová stojina mezi žebry, lomení køídla je vyztuženo pøekližkovým dílem. Torzní skøíò je potažena balzou jen shora. Polotovar nábìžky i odtokovky je pruh balzy odøíznutý z prkýnka se záøezy pro žebra. Odtokovku je tøeba ohoblovat a obrousit do klínu, nábìžku po pøilepení potahu torzní skøínì obrousit do polomìru nábìžné hrany.
Poloviny køídla jsou spojeny ocelovým drátem ohnutým do V. Já jsem si zadal, že drát budu mít rovný, mosazné trubky musím zalepit zešikma, abych docílil vzepìtí støedové èásti køídla.
Odhaduji, že u takto jednoduchého køídla má význam dìlat na CNC stroji jen žebra. Vše ostatní staèí vyøíznout z balzových prkýnek lámacím nožem podle pravítka.

